Этапы сборки
Работу по созданию своими руками самодельной мотособаки разделим на 4 основных этапа. Первый и последний этапы поменять местами нельзя. 2-й и 3-й этапы можно осуществлять параллельно.
1-й этап. Планирование
Для начала стоит представить, с какими характеристиками и внешним видом должна получиться ваша мотособака. Используя готовые схемы и чертежи, корректируя их под себя, составьте список планируемых материалов. Этот этап поможет избежать ошибок и ускорит создание машины. Порядок действий и предложенные материалы могут варьироваться. Следует оценить наличие инструмента и места для работы. Закупить недостающее. На момент начала сборки все материалы и инструменты должны быть в наличии и под рукой. При наличии помощника за 3-4 дня у вас будет готовая собственная мотособака.
2-й этап. Каркас
- Собирается основа, скелет машины. Он держит все элементы и испытывает нагрузку и постоянные вибрации. Он не должен прогнуться, швы сварки должны быть надежны. От этого будет зависеть, насколько безопасна ваша собранная своими руками мотособака. Схема и чертежи вашей машины не обязательно должны быть точными. При наличии всех элементов длина, ширина каркаса, места сварки креплений могут подгоняться на месте.
- Из труб варится модуль для мотособаки своими руками с помощью сварки. Прямоугольник из профиля 20 х 40 мм. Стойки крепления руля делаются из такого же профиля, но с большей толщиной стенки. Стоит учитывать, что мотособака будет испытывать постоянные вибрации, поэтому модуль либо варим изначально из более прочных труб, либо усиливаем конструкцию в последующем. Для руля используется профильная труба 20 х 20 мм и круглая труба примерно такого же диаметра. То место, где руль крепится к раме, необходимо усилить. На это место идет постоянное давление плюс вибрация. Следует также усилить жесткость рамы, например, приварив поперечные перекладины из профиля 20 х 40 мм или другого. Также рекомендуется внутрь трубы вставлять трубу меньшего диаметра. Привариваем пластины крепления ведущего вала к раме. Делаем крепление двигателя из уголка 40 х 40 мм или иного размера. Отрезаем 6-8 кусков и привариваем их в переднюю часть рамы. Привариваем крепления подвески мотобуксировщика.
- Варим защитный каркас двигателя необходимой формы и привариваем его к раме. Привариваем отрезки, соединяющие каркас со стойками крепления руля. Зачищаем неровные края.
- Чтобы избежать коррозии металла, сваренную раму окрашиваем. После полного высыхания краски обшиваем стальным (алюминиевым) листом с помощью заклепок.
- Высверливаем отверстия для болтов, чтобы закрепить двигатель.

3-й этап. Сборка ходовой части
- Кладем гусеницу, внутрь нее вставляем ведущий вал с насаженными корпусными подшипниками, потом вставляем балансир (задний вал). Сверху ставим раму. Раму закрепляем с помощью болтов и гаек. Сразу используйте контргайки. Ставим натяжители гусениц. Существуют различные натяжители гусениц, есть возможность выбрать наиболее подходящие, исходя из вашей конструкции.
- Между валами для опоры гусеницы ставим катки (катковые тележки) или склизы. Используются также комбинированные варианты. Склизы можно поставить заводские из пластика. Можно сделать деревянные из прочной древесины. Закрепляем их.
- Закрепляем брызговик, фаркоп, натягиваем гусеницу.
Посмотрите ниже схемы и чертежи мотособаки. Своими руками собирается эта техника, но при этом такой вариант очень практичный и надежный. Очень интересно здесь использование катков в ходовой части. Это повышает цену производства, но приравнивает вашу мотособаку к снегоходу по проходимости.

4-й этап. Завершение сборки
- Закрепляем двигатель четырьмя болтами.
- Устанавливаем звезды, цепь, натяжитель цепи (им может быть башмак цепи ГРМ).
- Ставим руль с рычагом газа и кнопкой выключения мотора.
- Подключаем все элементы. Прикручиваем защиту двигателя. Готово.
Металлическая рама
Конечно, металлическая конструкция не так практична, как деревянная. Материал очень дорогой и тяжелый, и сделать снегоход будет сложнее.
Также на его холодной поверхности не хватает металла, который нужно чем-то прикрыть, чтобы внутрь сдвинуться. Но есть большой плюс такого варианта — долговечность готовой конструкции.
Для изготовления металлического каркаса снегохода необходимы материалы и инструменты. Из инструментов это сварочные и электроды, молоток, болгарка, плоскогубцы, набор ключей и крепеж для системы.
Что касается материала, то здесь вам потребуется подготовить металлические трубы, металлический уголок, листовую сталь и швеллер.
здесь обязательно нужно сделать чертеж с точными размерами, прежде чем строить каркас. Это поможет максимально точно подобрать количество и вид материала.
Только тогда все покрывается листовым металлом. Чтобы сделать снегоход из мотоблока, нужно предусмотреть место для размещения двигателя.
Затраты
Постройка мотобуксировщика обошлась приблизительно в 25 тысяч рублей, без учета инструментов и расходных материалов. Основные затраты:
- двигатель с редуктором — 9 800 руб;
- гусеница 38-мм — 6 700 руб;
- валы с подшипниками — 2 500 руб;
- трубы и оцинковка — 2 500 руб;
- крепеж (болты, гайки и заклепки) — 1 000 руб;
- звезды и цепь — 1 700 руб;
- трос и рычаг газа — 300 руб.
Двигатель покупал в специализированном магазине неподалеку, трубы с оцинковкой и крепежом — в строительных гипермаркетах (Бауцентр, Леруа Мерлен). Все остальное — на местном рынке. Цены актуальны на ноябрь 2018 года для Омска.
Возможно что-то я забыл упомянуть либо совсем чуть-чуть ошибся в ценах, но сумма составляет примерно 25 000 рублей. Неплохая экономия, учитывая что готовый мотобуксировщик с похожими характеристиками обойдется как минимум в 1,5 раза дороже. Что касается времени, то работа заняла около 3-дней по 8 часов в неспешном ритме силами 2-х человек.
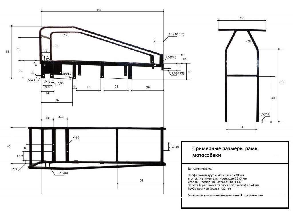
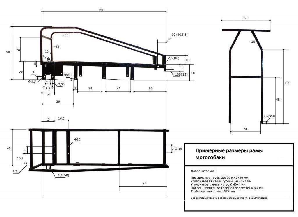
Размеры рамы мотобуксировщика в см
Вывод
Полноценные испытания самодельной мотособаки провести пока не удалось ввиду отсутствия достаточного количества снега. Результатом первых покатушек я остался полностью доволен. Мощности хватает, буксировщик с места встает на дыбы или пробуксовывает. Из слабых мест пока только истирание склизов в месте изгиба. В будущем будет устранено.
Самодельный мотобуксировщик с волокушами
Что касается самодельных волокуш, то их постройка будет рассмотрена отдельно чуть позже. О результатах испытаний мотобуксировщика и внесенных изменениях в конструкцию читайте в продолжении.
Мотобуксировщик или мотособака – нужная вещь для охотника. Этот вид транспорта можно приобрести в специализированном магазине, но цены на подобную технику высокие. Выход есть: собрать изделие можно самому, тогда затраты будут небольшими. Чтобы мотособака своими руками была сделана качественно, служила долго, нужна подробная схема и чертежи, ряд инструментов и деталей.
Особенности и виды мотобуксировщиков
Мотособака представляет собой вид гусеничной техники (с двигателем на гусеничном ходу), транспортное средство механического типа, позволяющее передвигаться самостоятельно и перевозить различные грузы на непроходимых участках. Данный агрегат весь популярен в кругах охотников и рыболовов, особенно среди тех, кто предпочитает современным квадроциклам это простое и малогабаритное оборудование.
Уже потом появилась техника для различных сезонов с различным целевым назначением:
- Помощь в буксировке тяжеловесных грузов;
- Передвижение в труднопроходимых местах, сквозь сугробы, заболоченные зоны, глину и грязь;
- Помощь в сельском хозяйстве и большом производстве.
- Современные мотособаки могут иметь грузоподъемность до 350 кг.
Основные составляющие элементы и органы управления конструкции:
- Двигатель (или силовой агрегат) – самая важная составляющая часть, самая дорогая и конструктивно сложная;
- Ходовая часть;
- Поворотный механизм;
- Рама с элементами крепежа (отверстиями);
- Рама агрегата силового типа;
- Подмоторная рама или Плита под мотором (отвечает за надежную фиксацию двигателя);
- Руль со встроенными органами управления (в том числе с переключателем КПП, ручкой газа и сцепления);
- Лыжный модуль;
- Трансмиссия (отвечает за передачу полезного момента с вала двигателя на саму гусеницу моторного буксировщика).
Как управлять мотособакой:
- Сидя на прицепе;
- Стоя на санях.
Завести и остановить снегоходную гусеничную машину можно:
- Нажав на рычаг газа;
- Нажав на сцепление.
Ходовую часть рекомендуется приобретать уже в сборе, а остальные элементы можно изготовить и самостоятельно. Дело в том, что сроки создания агрегата могут сильно растянуться в связи с трудоемкостью работ, а также необходимостью наличия определенных навыков.
Что такое мотособака для мотоблока
Гусеничная приставка представлена модулем, на котором располагается сиденье для человека и место для установки мотоблока. Вместо стандартных колес мотоблок устанавливается на гусеницы.
Управлять мотособакой можно сидя на прицепе либо стоя на санях. Заводится и останавливается мотобуксировщик путем нажатия рычага газа или сцепления, которые находятся на руле мотоблока. Повороты задавать, удерживаться можно при помощи руля.
Мотобуксировщик легко разбирается, без труда располагается в багажнике легкового автомобиля либо в гараже. Сделать аппарат также легко, как и разбирать.
Продолжительность сборки мотособаки не превышает 15 минут. Не требует особого ухода, прост в использовании.
В Российской Федерации запустили производство мотособак для мотоблоков. Приобретя мотокультиватор и гусеницы, можно сделать надежное приспособление в домашних условиях. Снегоходная приставка поможет охотникам, рыбакам в зимнее время проезжать через непроходимые места. Мотособака вытягивает до 2 лыжных прицепов, стандартных саней весом до 150 кг.
Гусеницы для самодельного снегохода
Сначала изготовил гусеницу. Пластмассовую водопроводную трубу сечением 40 мм нарезал на заготовки для грунтозацепов длиной по 470 мм. Затем каждую заготовку распилил циркуляркой вдоль на две равные части.
При помощи приспособления, показанного на рис. 2, дисковой пилой по дереву резал вдоль пластмассовые трубы для грунтозацепов.

Рисунок 1.Чертеж схема самодельного снегохода
Грунтозацепы прикрепил к транспортёрной ленте двумя мебельными болтами 6 мм с большой полукруглой шляпкой
При изготовлении гусеницы очень важно выдержать одинаковые расстояние между грунтозацепами, иначе они будут «набегать» на зубцы ведущих звёздочек и гусеница начнёт проскакивать и сползать с катков
Рисунок 2. Приспособление резки пластмассовых труб: 1. деревянный брусок; 2. пластмассовая труба; 3. металлический уголок.
Для сверления в транспортерной ленте отверстий под крепежные болты 6 мм сделал кондуктор. Отверстия в ленте сверлил сверлом по дереву со специальной заточкой.
Используя такой кондуктор, в транспортёрной ленте можно сверлить сразу 6 отверстий для крепления трёх грунтозацепов гусеницы.
В магазине я приобрёл четыре надувных резиновых колеса от садовой тележки, две ведущие звёздочки от снегохода «Буран» и два закрытых подшипника №205 для ведущего вала гусеницы.
Изготовить ведущий вал гусеницы и опоры для подшипников я попросил токаря. Раму снегохода сделал сам из квадратных труб 25×25 мм.
Так как оси шарниров поворота лыж и руля находятся на одной линии и в одной плоскости, можно использовать неразрезную рулевую тягу без шаровых наконечников.
Втулки поворота лыж делаются легко. К передней поперечной балке рамы я приварил водопроводные муфты с внутренней резьбой 3/4 дюйма. В них ввернул патрубки с наружной резьбой, к которым сваркой прикрепил сошки рулевой тяги и стойки лыж.
Я рекомендую использовать лыжи от детского снегоката «Аргомак». Они легче и эластичнее, но на них необходимо установить уголки для крепления к поворотной стойке снегохода и металлический подрез снизу — для лучшего управления снегоходом при движении по насту или укатанному снегу.
Читать также: Оборудование для пресса металла
Регулировка натяжения цепи происходит за счёт смещения двигателя.
Управлять снегоходом очень просто. При увеличении оборотов двигателя ручкой газа, расположенной на руле, происходит включение автоматического центробежного сцепления и снегоход начинает движение. Так как расчётная скорость снегохода — невелика(всего около 10-15 км/ч) и зависит от плотности снега, то тормозами снегоход не оборудован. Достаточно уменьшить обороты двигателя и снегоход останавливается.
Преимущества саней 2М и 2П перед лыжным модулем
Преимущества саней Ураган перед лыжным модулем (мы не претендуем на “истину в последней инстанции” и можем ошибаться. Мы описали средний лыжный модуль, который чаще всего встречается сейчас в продаже):
- Лыжный модуль (из-за слишком высокого центра тяжести – на 300 мм выше и небольшого габарита лыж по ширине – обычно до 1 метра) менее устойчив при движении по поверхности с большим количеством неровностей на скоростях даже на скорости 10 км/ч (к примеру колеи от колес). Из-за высокого центра тяжести движение в глубоком снегу лыжный модуль становиться так-же очень неустойчивым и валким. Сани Ураган позволяют уверенно двигаться по подобным неровностям в 2 раза большей скоростью.
- Лыжный модуль в среднем ухудшает проходимость в рыхлом, сыром или глубоком снегу – т.к. буксировщик с лыжным модулем и водителем становиться от 2-х раз тяжелее (особенно передняя часть на переднем приводе) и начинает быстрее проваливаться; лыжи едут по дополнительным колеям общей шириной от 300 мм, что пропорционально увеличивает сопротивление движению и требует большей мощности и гусеницы.
- Сани Ураган не увеличивают вес буксировщика, выступают всего на 50 мм по бокам колее гусеницы, плюс имеют большой промежуток между лыж, что наоборот уменьшает сопротивление движению (по сравнению с лыжным модулем или даже санями волокушами).
- Сани Ураган дают комфорт не только водителю, но и пассажиру. Значительно снижена нагрузка на позвоночник за счет снегоходной посадки, толстого мягкого сиденья и большой длины лыж (особенно последнее заметно при езде по переметам на большой скорости).
- Лыжный модуль увеличивает общую жесткую длину конструкции, что снижает проходимость по большим неровностям, типа поперечных сугробов и канав.
- Лыжный модуль страдает болезнью миниснегоходов – о ледяные торосы гнет подвеску и тяги управления поворотом, но прочность данных узлов лыжного модуля не сопоставима с прочностью тяг больших снегоходов, кроме того рулевые тяги у больших снегоходов надежно спрятаны и защищены от ударов, в отличии от лыжного модуля или миниснегохода.
- Движение по тонкому или последнему льду на санях Ураган безопаснее, чем на лыжном модуле – так как нагрузка распределена по длине куда более равномерно, а не сконцентрирована в 1-м месте.
- Погрузить буксировщик с санями по частям легче, чем буксировщик с лыжным модулем. В транспортном положении общая конструкция буксировщика с санями Ураган компактнее. Разборные сани Ураган еще компактнее и позволяют их перевозить в небольшом универсале вместе с буксировщиком.
- Лыжный модуль сложнее и дольше устанавливать на буксировщик, чем прицепить сани Ураган.
- Вытащить или развернуть застрявший буксировщик с санями по частям легче, чем лыжный модуль.
- На санях Ураган можно прилечь и отдохнуть).
- При таких преимуществах ЦЕНА саней Ураган сопоставима с лыжным модулем.
P.S. Установка лыжного модуля вполне оправдана на мотобуксировщиках с задним приводом, так как в глубоком снегу он отдельно вообще не ездит.
Что такое мотобуксировщик – описание и назначение
Под мотособакой понимают мини-снегоход (мини-снегоболотоход) с двигателем. Данное транспортное средство представляет собой сцепку из гусеничного буксировщика с санями либо санями-волокушами. Водитель мотособаки садится в сани, туда же кладут любой груз. У некоторых моделей «собаки» есть специальная грузовая площадка на тягаче. Мощность двигателя обычно составляет от 6 л. с. до 13 л. с., скорость равна 30-40 км/час. Тормоз у мотособаки отсутствует, о чем всегда надо помнить водителю.
Мотобуксировщики популярны среди рыбаков, охотников. Также их можно применять в сельском и лесном хозяйстве для перевозки небольших грузов. В отличие от колесной техники, лыжи на санях мотособаки позволяют передвигаться даже по рыхлому снегу, зимнему бездорожью, чем транспортное средство напоминает снегоход. Разница лишь в расположении водителя: они сидит вне платформы с мотором, что уменьшает вес мотособаки, увеличивает проходимость. Также плюсами в сравнении со снегоходом являются простота конструкции, более низкая цена.
На мотособаках можно передвигаться по замерзшей поверхности водоема – озера, реки. Они идеальны для любителей подледной ловли и были разработаны специально для них. Машину легко перевезти в автомобиле, используя чехол, выгрузить на берегу, после применять по назначению. На мотособаке возможно перевозить грузы по пересеченной местности, изобилующей спусками, подъемами. Используют технику для поездок летом, весной, осенью по болотистым полянам, лесным дорожкам.
Почему стоит изготовить мотособаку – причины
И покупная техника, и самоделка отличаются неприхотливостью, компактностью, не требуют много места для перевозки, хранения. Но некоторые охотники предпочитают делать мотособаки самостоятельно, из подручных средств. Основная причина – экономичность: самодельный вариант обойдется на порядок дешевле. Не более стоимости самого простого буксировщика из Китая можно соорудить также надежный, прочный буксировщик-толкач.
У многих моделей мотособак, особенно китайской сборки, есть масса недочетов в конструкции. Например, гусеница может часто забиваться снегом, что связано с промахами разработчиков. Прочие возможные проблемы – вставание мотособаки на дыбы, зарывание в слишком глубоком снегу, забрасывание снега в сани. Всех этих неприятностей можно избежать, если делать транспортное средство самому.
При переднем расположении мотора мотособаки, которое практически всегда планируется в самодельных моделях, работа машины будет намного эффективнее. Вот очевидные плюсы:
- экономия топлива и общее удешевление конструкции;
- более высокая скорость движения;
- возможность сделать дополнительные отсеки для снастей.
Этапы сборки
Работу по созданию своими руками самодельной мотособаки разделим на 4 основных этапа. Первый и последний этапы поменять местами нельзя. 2-й и 3-й этапы можно осуществлять параллельно.
1-й этап. Планирование
Для начала стоит представить, с какими характеристиками и внешним видом должна получиться ваша мотособака. Используя готовые схемы и чертежи, корректируя их под себя, составьте список планируемых материалов. Этот этап поможет избежать ошибок и ускорит создание машины. Порядок действий и предложенные материалы могут варьироваться. Следует оценить наличие инструмента и места для работы. Закупить недостающее. На момент начала сборки все материалы и инструменты должны быть в наличии и под рукой. При наличии помощника за 3-4 дня у вас будет готовая собственная мотособака.
2-й этап. Каркас
- Собирается основа, скелет машины. Он держит все элементы и испытывает нагрузку и постоянные вибрации. Он не должен прогнуться, швы сварки должны быть надежны. От этого будет зависеть, насколько безопасна ваша собранная своими руками мотособака. Схема и чертежи вашей машины не обязательно должны быть точными. При наличии всех элементов длина, ширина каркаса, места сварки креплений могут подгоняться на месте.
- Из труб варится модуль для мотособаки своими руками с помощью сварки. Прямоугольник из профиля 20 х 40 мм. Стойки крепления руля делаются из такого же профиля, но с большей толщиной стенки. Стоит учитывать, что мотособака будет испытывать постоянные вибрации, поэтому модуль либо варим изначально из более прочных труб, либо усиливаем конструкцию в последующем. Для руля используется профильная труба 20 х 20 мм и круглая труба примерно такого же диаметра. То место, где руль крепится к раме, необходимо усилить. На это место идет постоянное давление плюс вибрация. Следует также усилить жесткость рамы, например, приварив поперечные перекладины из профиля 20 х 40 мм или другого. Также рекомендуется внутрь трубы вставлять трубу меньшего диаметра. Привариваем пластины крепления ведущего вала к раме. Делаем крепление двигателя из уголка 40 х 40 мм или иного размера. Отрезаем 6-8 кусков и привариваем их в переднюю часть рамы. Привариваем крепления подвески мотобуксировщика.
- Варим защитный каркас двигателя необходимой формы и привариваем его к раме. Привариваем отрезки, соединяющие каркас со стойками крепления руля. Зачищаем неровные края.
- Чтобы избежать коррозии металла, сваренную раму окрашиваем. После полного высыхания краски обшиваем стальным (алюминиевым) листом с помощью заклепок.
- Высверливаем отверстия для болтов, чтобы закрепить двигатель.

3-й этап. Сборка ходовой части
- Кладем гусеницу, внутрь нее вставляем ведущий вал с насаженными корпусными подшипниками, потом вставляем балансир (задний вал). Сверху ставим раму. Раму закрепляем с помощью болтов и гаек. Сразу используйте контргайки. Ставим натяжители гусениц. Существуют различные натяжители гусениц, есть возможность выбрать наиболее подходящие, исходя из вашей конструкции.
- Между валами для опоры гусеницы ставим катки (катковые тележки) или склизы. Используются также комбинированные варианты. Склизы можно поставить заводские из пластика. Можно сделать деревянные из прочной древесины. Закрепляем их.
- Закрепляем брызговик, фаркоп, натягиваем гусеницу.
Посмотрите ниже схемы и чертежи мотособаки. Своими руками собирается эта техника, но при этом такой вариант очень практичный и надежный. Очень интересно здесь использование катков в ходовой части. Это повышает цену производства, но приравнивает вашу мотособаку к снегоходу по проходимости.

4-й этап. Завершение сборки
- Закрепляем двигатель четырьмя болтами.
- Устанавливаем звезды, цепь, натяжитель цепи (им может быть башмак цепи ГРМ).
- Ставим руль с рычагом газа и кнопкой выключения мотора.
- Подключаем все элементы. Прикручиваем защиту двигателя. Готово.
Мотобуксировщиковщик “мотособака” своими руками: схемы и чертежи
Умельцами разработаны различные варианты мотобуксировщиков. Ниже представлен один из вариантов схемы самодельного транспорта с описанием всех составляющих.
Гусеничный мотобуксировщик “Тюлень” составляют следующие узлы и детали:
- 1 – рукоятки управлении мотобуксировщиком;
- 2 – каток ведущий;
- 3 – лента гусеничная;
- 4 – бак топливный;
- 5 – дышло;
- 6, 12 – катки опорные;
- 7 – каток натяжной;
- 8 – двигатель V-50;
- 9 – рама;
- 10 – каток передний;
- 11 – патрубок выхлопной;
- 13 – цепь привода ведущих катков;
- 14 – звездочка ведущего вала.
Мотособака представлена модулем, на котором расположено место для мотоблока, может быть сиденье для человека. Мотоблок поставлен на гусеницы.
Инструменты и материалы
Для самостоятельного выполнения сборочных работ нужен определенный перечень инструментария и материалов.
Потребуется несколько инструментов.
- Сварочный аппарат. Он нужен для стыковки металла, дает возможность получить надежное соединение. Для работы со сварочным агрегатом нужна определенная оснастка, в частности, электроды, а также защитная экипировка.
- Угловая шлифовальная машина (болгарка) – незаменимый инструмент при работе с металлами. Она необходима для расчленения заготовок на отдельные части. К болгарке надо подобрать специальные насадки, которые потребуются для работы с определенными материалами.
- Электродрель – для получения отверстий.
- Комплект гаечных ключей для работы с крепежными изделиями.
Из материалов и агрегатов нам потребуются:
- соответствующий мотор для определенных условий эксплуатации;
- профильная и круглая труба для сооружения остова (рамы);
- колеса на ходовую часть.
Мотособака собственного изготовления: технология
Перед началом работы нужно подготовить все необходимые инструменты и оборудование для мотособаки. Подробно ознакомиться с ходом работы можно при просмотре тематического видео.
Подготовка к работе
Чтобы проблем с использованием мотособаки не возникло, важно сразу определиться с ее основными техническими параметрами:
- грузоподъемностью;
- мощностью двигателя;
- типом трансмиссии;
- системой запуска двигателя – ручной или электрической.
Также следует подумать над дополнительными приспособлениями мотособаки – лебедкой, освещением, защитными элементами, сиденьями. Затем составляется точный чертеж, на котором будут отражены все нюансы. Далее можно заказать комплект деталей для мотособаки или подобрать их самостоятельно из имеющихся в наличии от иной техники.

Необходимые инструменты
При работе не обойтись без сварочного инвертора, дрели и болгарки, набора гаечных ключей. Также для монтажа мотособаки потребуются отвертки, напильник, прочие мелкие инструменты. У мастера должен быть доступ к токарному, фрезерному станкам.
Сборка мотособаки
Вначале делают раму мотособаки, которая поможет закрепить двигатель, коробку, ходовку. Для этого подобранные трубы (также подойдет балка или швеллер) сваривают в прямоугольную рамку. Затем приваривают крепления для всех важных узлов мотособаки. После можно установить двигатель.

Ходовая часть должна быть основана на опорных подшипниках. На токарном станке вытачивают соответствующие втулки с толщиной стенок 5 мм. Применяя втулки, по углам рамы ставят подшипники. После изготавливают переднюю, заднюю оси, которые сформируют валы вместе со втулками и подшипниками. Задний вал мотособаки делают ведущим, надевая на него приводную звездочку и надежно приваривая ее. Цепью ее надо присоединить к коробке передач.
Гусеницы мотособаки делают самостоятельно из транспортерной ленты более 30 см шириной либо берут готовые, но последние придется разрезать и расширять вставками. Траки создают из древесины, пластиковых труб или снимают со старого снегохода. На коробку, мотор ставят шкивы, соединяющиеся ременной передачей. К рулю крепят элементы управления мотособакой – рукоять сцепления на левой стороне, ручку газа – на правой. Руль закрепляют на раме двумя трубами путем сваривания с вилкой. Последняя располагается на задней оси и закрепляется приваренными стальными шайбами.
По окончании работы монтируются дополнительные приспособления мотособаки, навешивается нужное оборудование. Конструкция дополняется местом для сидения, отсеком для грузов и т. д. Готовое изделие не уступит по качеству магазинной технике, зато будет сделано надежно и может быть отремонтировано в случае поломки самим мастером.
http://www.umeltsi.ru/samodelki-vezdehody/5140-motobuksirovschik-svoimi-rukami-chertezhi-sborka.htmlhttp://brakonyerov.net/ohota/ekipirovka/motosobaka-svoimi-rukami.htmlhttp://traktoramira.ru/dopolnitelnoe-oborudovanie/kak-svoimi-rukami-sdelat-motosobaku.htmlhttp://truehunter.ru/463218a-motosobaka-svoimi-rukami-cherteji-konstruktsiya-izgotovleniehttp://sam-stroitel.com/motobuksirovshhik-svoimi-rukami-foto-sborki-motosobaki.htmlhttp://brakonyerov.net/ohota/ekipirovka/motosobaka-svoimi-rukami.html
Основные элементы мотособаки
Самая важная деталь техники – двигатель. Обычно для создания мотособак применяется одноцилиндровый карбюраторный бензиновый мотор
Не менее важной частью является резинометаллическая гусеница – движитель с подвеской. С помощью гусеницы можно ездить по снегу, льду, мягкому грунту в теплое время. Стоит подробнее рассмотреть все составляющие мотособаки
Стоит подробнее рассмотреть все составляющие мотособаки.
Двигатель машины
Популярным считается мотор с мопеда Ш-58, рассчитанный на ручное переключение коробки. Также можно применять двигатели для скутеров. Главное, чтобы у изделия были хорошие тяговые характеристики, мощность не менее 6 л. с. Этого достаточно для перевозки на мотособаке одного человека и груза на 30-50 кг. Для поездки двух человек и груза на 150-200 кг лучше выбрать двигатель мощностью более 9 л. с. В качестве элемента тюнинга мотора часто используют натяжитель цепи.
Несущая рама мотособаки
Рама должна иметь отличное качество, ведь в пути она испытывает высокие нагрузки, особенно при движении по бездорожью. Эта конструкция делается полностью своими руками, варится из металлических труб прямоугольного сечения. Обычно хватает толщины трубы 3 миллиметра, более тонкий металл не годится, он быстро деформируется.
Как сделать раму своими руками, можно посмотреть на фото, видео. Берут две трубы сечением 20*20 мм, дополняют еще двумя размерами 20*40 мм, формируют каркас. Вваривают в него два уголка по 40 мм, сверху приваривают защитный каркас для двигателя, который не даст ему повредиться при опрокидывании техники. К раме также желательно присоединить заклепками лист оцинковки для закрытия гусеницы.
Подвеска мотособаки
Подвеска служит важным показателем работы ходовой части. По конструкции она может быть катковой, склизовой. Катковая хуже показывает себя на снегу, зато идеальна для движения в теплое время года. Подвеска на склизах не позволяет забиваться гусеницам, но применяется только зимой: ей нужен снег, который охлаждает систему (лыжный модуль).
Для домашнего изготовления мотособаки и поездок в любой сезон года стоит выбирать современную катковую подвеску, но не с жестким, а с пружинным опиранием катков. Такая мотособака будет более мягко перемещаться на замерзшей дороге. При движении придется избегать слишком рыхлого снега.
Может, лучше купить снегоход?
На сегодняшний день в продаже имеются готовые снегоходы и мотобуксировщики различных фирм. Стоимость их начинается от 100 000 руб. и выше. Цена снегоходов брендовых фирм превышает 1 500 000 руб. Купить такой может не каждый. Мало того что они очень дороги сами по себе. Для снегохода необходимо отдельное место в гараже, у него большой расход топлива, дорогостоящее обслуживание. Чтобы не получить штраф, необходимо получить права категории А1, которые выдаются водителям самоходных машин в Гостехнадзоре. Управлять самоходной машиной без прав запрещено. А еще за снегоход придется платить транспортный налог.
Другие типы машин
Из мотоблока также можно собрать квадроцикл, правда, сверхвысокую скорость этот агрегат не развивает, зато по маневренности и проходимости не уступает своему . Посадка в самодельном квадроцикле остается традиционной, а не мотоциклетной. Колеса используют от любого легкового автомобиля.
Стоит упомянуть об интересной самоделке под названием каракат. Сила машины заключена в ее больших колесах, представляющих собой обычные автокамеры, стянутые прочными ремнями.
На каракат ставят самодельные диски, дорабатывая стандартные автомобильные. На легкий мотоблок также устанавливают весьма оригинальный диск. Для этого по контуру соединяют два алюминиевых тазика, предварительно вырезав дно под размер ступицы, монтируют ребра жесткости и боковые ограничители для фиксации камеры.
При внешней неуклюжести каракат обладает высокой проходимостью и устойчивостью. Он не только легко может преодолевать заболоченные низменности, но способен перевозить значительный груз (до 100 кг).
Как сделать мотобуксировщик своими руками?
Тягач с научным приводом или простая и популярная моторизованная собака — очень удобное средство передвижения для охоты и рыбалки. Он компактен, прост в управлении, не требует водительских прав и стоит значительно дешевле любого снегохода. Его можно приобрести в специализированном магазине, только цены на такое оборудование высокие. Выход есть — можно собрать устройство самостоятельно в домашних условиях, в этом случае вложения будут незначительными. Для того, чтобы самодельная моторизованная собака была произведена на правильном уровне, чтобы долго функционировала, необходимы подробная схема и чертежи, набор комплектующих и инструментов.
Мотобуксировщиковщик “мотособака” своими руками: схемы и чертежи
Умельцами разработаны различные варианты мотобуксировщиков. Ниже представлен один из вариантов схемы самодельного транспорта с описанием всех составляющих.

Гусеничный мотобуксировщик “Тюлень” составляют следующие узлы и детали:
- 1 – рукоятки управлении мотобуксировщиком;
- 2 – каток ведущий;
- 3 – лента гусеничная;
- 4 – бак топливный;
- 5 – дышло;
- 6, 12 – катки опорные;
- 7 – каток натяжной;
- 8 – двигатель V-50;
- 9 – рама;
- 10 – каток передний;
- 11 – патрубок выхлопной;
- 13 – цепь привода ведущих катков;
- 14 – звездочка ведущего вала.

Мотособака представлена модулем, на котором расположено место для мотоблока, может быть сиденье для человека. Мотоблок поставлен на гусеницы.
Техническое обслуживание мотобуксировщика
Для того, чтобы поддержать мотобуксировщик «НЕВА» МС-1 в технически исправном состоянии, выполните нижеперечисленные рекомендации по эксплуатации:
Перед каждой поездкой “мотособака” должна быть проверена по следующим параметрам:
- Проверьте надежность крепления деталей и узлов мотобуксировщика и при необходимости произведите подтяжку резьбовых соединений
- Визуально проверьте отсутствие течи топлива и масла. В случае обнаружения уточек устраните причину их образования
- Проверьте уровень топлива в баке
- Проверьте уровень масла в моторе
- Проверьте состояние приводной цепи. При необходимости смажьте цепь
- Проверьте состояние и натяжение гусеницы. При необходимости отрегулируйте натяжение гусеницы
Во время поездки осуществляйте остановки, очищайте пространство в трансмиссии от снега и грязи. Помните, снег, особенно мокрый, а также грязь могут замерзнуть и сковать трансмиссию и гусеницу вплоть до блокировки.
При длительном равномерном движении возможно обледенении, скапливание снега и блокировка привода дроссельной заслонки карбюратора, поэтому во время поездки периодически меняйте положение рычага газа. Перед остановкой, заблаговременно сбрасывайте газ, будьте готовы к экстренной остановке мотора.
После каждой поездки очищайте мотобуксировщик, а также детали от грязи и снега. Помните, если снег и грязь, попавшие в трансмиссию, замерзнут, дальнейшая эксплуатация будет невозможна, пока Вы полностью не очистите трансмиссию от загрязнений.
После первых 20 часов работы (после обкатки) эксплуатация мотобуксировщика включает в себя следующие действия:
- Замена масла в двигателе
- Замена масла в редукторе
- Чистка или замена воздушного фильтра
- Смазка троса газа силиконовым маслом
- Регулировка свободного хода рычага газа
- Смазка цепи и приводных звездочек
- Проверка натяжения цепи и при необходимости регулировка ее натяжения
- Проверка натяжения гусеницы и при необходимости регулировка ее натяжения
- Проверка надежности крепления деталей и узлов “мотособаки” и при необходимости подтяжка резьбовых соединений
Через каждые 50 часов эксплуатации мотобуксировщика следует делать следующее:
- Смазать трос газа силиконовым маслом
- Отрегулировать свободный ход рычага газа
- Смазать цепь и приводные звездочки
- Проверить натяжение цепи и при необходимости отрегулировать ее натяжение
- Проверить натяжение гусеницы и при необходимости отрегулировать ее натяжение
- Проверить надежность крепления деталей и узлов техники и при необходимости произвести подтяжку резьбовых соединений
- Провести техническое обслуживание мотора (читайте инструкцию по пользованию техникой)
Мотобуксировщик «НЕВА» МС-1 на Финском заливе
Мотобуксировщик «НЕВА» МС-1К на твердом снеге





































