Введение
Целью руководства по эксплуатации является ознакомление пользователя с техническим обслуживанием и эксплуатацией мотобуксировщика (далее МБ), с рекомендациями по устранению неисправностей с применением стандартного инструмента. Конструктивные особенности, правила эксплуатации и техническое обслуживание двигателя изложено в руководстве по эксплуатации двигателя. Мотобуксировщик «СТЕМ Север» является многофункциональным транспортным средством, предназначенным для перевозки груза и людей. Мотобуксировщик имеет малый вес и небольшие габариты, тем самым облегчается его хранение и перевозка.
К эксплуатации, обслуживанию и ремонту «СТЕМ Север» и его двигателя могут допускаться только лица не моложе 16 лет, изучившие данное Руководство и Руководство по эксплуатации двигателя. Также необходимо соблюдать соответствующие указания по предотвращению несчастных случаев. При самовольном изменении пользователем конструкции МБ или его двигателя Изготовитель перестает нести ответственность в случае возникновения поломок.
При движении МБ избегайте больших неровностей по пути, не допускайте прыжков и ударов гусеницы буксировщика.
Модели мотобуксировщиков отличаются установленным на них двигателем и габаритами. Технические характеристики и особенности эксплуатации двигателей описаны в руководстве по эксплуатации двигателей, прилагающемся к каждому мотобуксировщику.
Характерные неисправности и методы их устранения
| Признаки неисправности мотобуксировщика | Вероятная причина | Методы устранения |
|---|---|---|
| МБ перемещается неравномерно, рывками, слышны посторонние металлические звуки | 1. Изношен ремень вариатора 2. Изношены пластиковые вставки вариатора | 1. Заменить ремень. 2. Заменить вставки. |
| Слышен металлический гул | Повреждение подшипников | Заменить подшипники |
| Двигатель набирает максимальные обороты, но МБ не двигается с места | Порван ремень вариатора | Заменить ремень вариатора |
| Двигатель работает, набирает обороты, но МБ не двигается | Перевернулся каток гусеницы от сильного удара | Вернуть каток в изначальное положение |
| Клинит вариатор при перегреве | 1. Износ бронзо- графитной втулки 2. Проскальзывание ремня | 1. Заменить втулку 2. Заменить ремень, почистить диски (через 8 часов работы). |
Как сделать мотобуксировщик своими руками?
Тягач с научным приводом или простая и популярная моторизованная собака — очень удобное средство передвижения для охоты и рыбалки. Он компактен, прост в управлении, не требует водительских прав и стоит значительно дешевле любого снегохода. Его можно приобрести в специализированном магазине, только цены на такое оборудование высокие. Выход есть — можно собрать устройство самостоятельно в домашних условиях, в этом случае вложения будут незначительными. Для того, чтобы самодельная моторизованная собака была произведена на правильном уровне, чтобы долго функционировала, необходимы подробная схема и чертежи, набор комплектующих и инструментов.
Как волокуша может влиять на скорость
Все зависит от типа местности. Мотобуксировщик нужен для того, чтобы пробираться там, где много снега. Если волокуша широкая, шире гусеницы, она будет нарезать свой след. Например, сани шириной 800 мм, а гусеница 500. То есть сани нарывают себе дорогу. Теряется мощность, увеличивается расход топлива, мотобуксировщик начинает работать на максимальных оборотах, потому что надо тянуть себя, пассажира и сани. Таким образом, сани должны иметь колею, близкую к колее мотобуксировщика. Если ширина саней в след мотобуксировщика, скорость будет хорошая, если шире, скорость уменьшается.
Чем закрыть двигатель мотособаки
Мотобуксировщик изготовление своими руками
В статье описаны основные составные блоки, которые можно взять за основу для изготовления мотобуксировщика своими собственными руками. Самостоятельное изготовление мотобуксировщика не является чем-то сложным, однако для «стыковки» отдельных блоков между собой, все таки понадобится иметь под рукой сварочный аппарат. Ниже приводится описание основных блоков из которых можно собрать данное транспортное средство. Все описанные конструктивные части, на данный момент, можно приобрести либо в специализированных магазинах торгующих запасными частями для снегоходов и мотобуксировщиков, либо заказать у нас.
Основные элементы мотобуксировщика
Модуль установки
Если Вы, после прочтения статьи, заинтересованы в покупке каких-либо комплектующих. То задайте нам вопрос, воспользовавшись разделом.
Ходовая часть мотобуксировщика своими руками
Ходовую часть мотобуксировщика можно отнести к одной из наиболее дорогих и конструктивно сложных в изготовлении частей. Чаще всего ходовая часть мотобуксировщика, приобретается уже в сборе. Это действительно является оправданным, так как наличие ходовой мотобуксировщика в сборе, позволяет уменьшить время на изготовления мотобуксировщика своими руками
При изготовлении ходовой части, обратите внимание, на то, что последняя должна быть оснащена крепежными элементами (отверстиями) к которым происходит фиксация рамы мотобуксировщика. Для избегания зацепов при движении, чаще всего рама фиксируется к ходовой части винтам с потайной головкой (см
гост 17475-80). Расположение крепежных элементов рамы и ходовой части самодельного мотобуксировщика зависит от положения силового агрегата (двигателя).
Подвеска мотобуксировщика
- катковой
- склизовой
- комбинированный тип подвески
Если кратко, то тип и конструкция подвески влияет как на скоростные характеристики мотобуксировщика так и на «жесткоcть» его движения. Например в мотобуксировщиках со склизовой подвеской, в зазор ходовой части, при движении по целине, будет попадать меньшее количество снега, нежели если бы у мотобуксировщика была катковая подвеска. Таким образом в «склизовых» мотобуксировщиках силовой агрегат (двигатель) при движении работает с меньшими перегрузками и, как следствие, менее подвержен перегреву.
Мощность двигателя мотобуксировщика
На производимыми нами мотобуксировщиками мы в основном устанавливаем двигатели марки Lifan (Китай). Почему мы остановились на данном производители? Прежде всего компания Lifan в первой сотне лучших компаний Китая (в Китае, компания Lifan более известна по производству мотоциклов). Объемы колоссальны и номенклатура производимых изделий не ограничивается только двигателями. Концерн Lifan выпускает с «конвеера» так же мотоциклы, автомобили и генераторы, поэтому качество, при таком объеме выпускаемой продукции, должно быть соответствующим.
Как показала практика, мощности двигателя в 6.5 л.с. оказывается явно недостаточно, в особенности когда мотобуксировщик движется по глубокому снегу («пухляку»). Запас по «лошадиным силам» никогда не будет лишним, при этом разность в цене между двигателями 6.5 л.c. и 15 л.c. не существенен. Однако, следует иметь ввиду, что более мощные двигатели являются и более габаритными.
Например, китайские двигатели марки Lifan 15 л.c., как показала практика, имеют больший ресурс работы и более качественное исполнение, чем менее мощные двигатели из этой «линейки».
Трансмиссионные комплекты (трансмиссия)
Как передать полезный момент с вала двигателя на гусеницу мотобуксировщика? Два варианта: использовать вариатор и ведомый шкив, либо использовать цепную передачу и автоматическое сцепление. На данный момент, мы предлагаем первый вариант т.е. использование трансмиссионных комплектов на основе вариатора.
Разница по типу передачи
Двигатель для мотобуксировщика может быть двух видов: с вариатором или с автоматическим переключением скоростей, регулируемым редуктором. Оба вида имеют как плюсы, так и минусы.
Если используется вариатор, это подразумевает бесступенчатое изменение тяги. Благодаря тому, что передаточное соотношение между двигателем и ведущей звездочкой меняется плавно, на протяжении всей работы мотособаки, крутящий момент двигателя не уменьшается. Это становится возможным благодаря использованию ременной передачи. Так как мотор работает плавно, без резких остановок и запусков, это значительно продлевает срок его службы.
Использование вариатора более экономично. За счет регулирования тягловой силы, топливо расходуется не так быстро. КПД такого двигателя больше, чем у редукторного с АКПП. Если говорить о впечатлениях от езды, мотор с вариатором позволяет двигаться более плавно и набирать скорость быстрее.
Редуктор, который регулирует степень тяги, в отличие от устройства с вариатором не изменяет передаточное отношение между валом двигателя и ведущей звездочкой. Редуктор обеспечивает только лишь переключение передачи на промежуточный вал, когда мотобуксировщик трогается с места. Такая конструкция проще предыдущей, но ее действие более критично для мотора, так как увеличивается его износ. В целом, АКПП используется достаточно давно, и его работа неплохо налажена.
Передача обоих видов переключения нуждаются в элементарном регулярном техническом обслуживании. В таком случае двигатель прослужит вам достаточно долго. Для этого его нужно прогревать, менять масло и стараться не нагружать без необходимости.
Ходовая часть
4.1 Через несколько километров пробега гусеница мотобуксировщика начинает заметно провисать, что особенно заметно на модели ORR-73 в силу значительной длины. Это нормальное явление, т.к. гусеница новая и разрабатывается. Для того, чтобы подтянуть гусеницу, необходимо:
- ослабить болты (М16) крепления ведомого вала (балансира);
- подтянуть гусеницу до легкого провисания верхней ее части, используя винты-полукольца с обеих сторон;
- затянуть (не сильно) болты (М16) крепления ведомого вала (балансира).
4.2 Избыточная натяжка гусеницы может привести к повреждению полуколец и даже деформации рамы. Слабая натяжка — к проворачиванию тележек (или скзизовых блоков) и к пробуксовке ведущего вала (редко).
4.3 Подшипники ведущего вала (UCFL-205) смазываются через пресс-масленки (тавотницы) в корпусе подшипников с помощью шприца для густой смазки. Подшипники тележек и ведомого вала можно смазывать жидкой смазкой (через отверстия, закрытые заглушками), но лучше разобрать и смазать густой смазкой, например Литолом.
4.4 Во всех подшипниках присутствует заводская смазка в достаточном количестве, поэтому первые 1-2 сезона их смазка не требуется при условии, что в подшипники не проникает вода, которая вымывает смазку.
4.5 При преодолении неровностей одна из тележек мотобуксировщика (часто средняя) может провернуться. Для продолжения движения необходимо вернуть тележку в исходное положение.
4.6 …
Общая информация о самостоятельном ремонте
Наибольшую нагрузку получают механические элементы, поэтому они ломаются чаще всего. Для ремонта гнутых звеньев, например, в приводной цепи, нужно использовать специальный ключ и запасные части. Стоит отметить, что система привода мотобуксировщика расположена под резиновым кожухом, поэтому при поломке или вылете одного из элементов рамы или сцепления водитель остается в полной безопасности.
На случай выхода из строя стартера необходимо всегда брать с собой в поездку специальный шнур для ручного запуска двигателя. Для починки техники можно воспользоваться специальными методическими изданиями или инструкциями по эксплуатации, наиболее популярными из которых являются:
- ?Мотобуксировщик МБГ-1 и его модификации?;
- ?Техническое описание модели ?Лебедев ? LVR 500?.
Ремонтировать самому или обратиться в сервис-центр?
К ремонту в специализированном сервисе стоит обращаться в случае, если отсутствуют соответствующие навыки и специальный инструмент и приспособления, необходимые, чтобы произвести качественный ремонт, либо уровень необходимых восстановительных процедур чрезмерно сложен. Это относится и к непростому восстановлению ходовой части. Хотя некоторые поломки можно устранить и своими руками.
Самостоятельный ремонт ходовой части рекомендуется в тех случаях, когда поломка несерьёзная и это будет экономически выгодней, чем услуги профессиональных мастеров. Следует заниматься ремонтом самостоятельно при наличии соответствующих инструментов, запасных частей, а перед глазами имеется чертёж данного узла.
Своими руками можно устранить следующие поломки и дефекты:
- местный надрыв или небольшую перфорацию трака гусеницы,
- замену скользящего слоя на склизах,
- замену подшипников катков или звёздочек,
- замену ведомой или ведущей звёздочки на валу и т. д.
Назначение, двигатель и другие замечания
Мотоциклетная собака изначально создавалась для продажи знакомым или всем желающим. Поскольку ни одна из знаний еще не созрела, тягач выставлен на продажу. Цена будет указана в конце статьи.
Основная идея при создании моторизованного тягача заключалась в создании максимально прочной, надежной и универсальной конструкции при минимальных затратах. Вот почему мы особо не заморачивались с покраской, заминкой и угробили картер, защищающий двигатель от холода. Но при этом не стали экономить на толщине металла и качестве комплектующих.
Тягач укомплектован гусеницей «Бурановская» 380 мм с 57 ступенями общей длиной 2878 мм, а также мачтами «Бурановская» и 3 симметричными лафетами. Двигатель Lifan 170F-TR, 8 л.с с АКПП. Самый мощный из небольших и легких двигателей Лифан. 9 л.с намного тяжелее.
У меня нет опыта использования именно этого двигателя, но первые впечатления только положительные, особенно по сравнению с моим Forza FZ-6.5:
- Бензобак на резиновых шайбах, антивибрационный, с нормальным колпачком на резьбе и цепочке;
- Более толстый металлический глушитель и рубашка охлаждения цилиндра;
- Кнопка топливного насоса;
- Воздухозаборник с металлической сеткой.
Что касается этапов сборки, то в нашем случае они корректировались с учетом наличия или отсутствия необходимых комплектующих и расчета требуемых размеров. Если все есть, то последовательность может быть другой, например, на одном из первых этапов можно приварить опору двигателя.
По поводу размера кадра:


Основные типы ходовой части
Ходовая может быть как на роликах, так и на склизах. Роликовая схема подвески является более универсальной, но проходимость транспортного средства на роликах на глубоком снегу будет несколько снижена.
Склизовая подвеска, наоборот, предназначена преимущественно для передвижения по глубокому и рыхлому снегу. В этом случае снег обеспечивает охлаждение и смазку поверхности склизов. Но склизовая подвеска совершенно непригодна для движения по накатанной снежной дороге, льду или грунту. В первую очередь, из-за отсутствия её охлаждения и смазки. И та, и другая подвески могут быть мягкими, то есть, иметь амортизацию.
Гусеница выполняет функцию основного тягового элемента для этого транспортного средства, благодаря которой происходит передвижение мотобуксировщика по любой поверхности, будь это снежная целина или, в зависимости от сезона, заболоченная, труднопроходимая местность. С помощью гусеницы во многом обеспечивается функция управления. Если же хотя бы один гусеничный трак получит повреждение, у транспортного средства ухудшается или полностью теряется управляемость, что может привести к нежелательным последствиям, вплоть до аварии.
Гусеницы бывают разрезными и скреплёнными П-образными металлическими профилями или цельными. В качестве материалов для изготовления гусениц сегодня преимущественно применяются композитные и резинотканные материалы. Причём технологические процессы, лежащие в основе производства гусениц, ориентированы на обеспечение продолжительности эксплуатации этого гусеничного движителя. Это происходит благодаря применению усиленного корда, а также специальным видам резиновой смеси с добавлением силикона.

Общая информация о самостоятельном ремонте
Наибольшую нагрузку получают механические элементы, поэтому они ломаются чаще всего. Для ремонта гнутых звеньев, например, в приводной цепи, нужно использовать специальный ключ и запасные части. Стоит отметить, что система привода мотобуксировщика расположена под резиновым кожухом, поэтому при поломке или вылете одного из элементов рамы или сцепления водитель остается в полной безопасности.
На случай выхода из строя стартера необходимо всегда брать с собой в поездку специальный шнур для ручного запуска двигателя. Для починки техники можно воспользоваться специальными методическими изданиями или инструкциями по эксплуатации, наиболее популярными из которых являются:
- «Мотобуксировщик МБГ-1 и его модификации»;
- «Техническое описание модели «Лебедев – LVR 500».
Почему стоит изготовить мотособаку – причины
И покупная техника, и самоделка отличаются неприхотливостью, компактностью, не требуют много места для перевозки, хранения.
Но некоторые охотники предпочитают делать мотособаки самостоятельно, из подручных средств. Основная причина – экономичность: самодельный вариант обойдется на порядок дешевле.
У многих моделей мотособак, особенно китайской сборки, есть масса недочетов в конструкции. Например, гусеница может часто забиваться снегом, что связано с промахами разработчиков. Прочие возможные проблемы – вставание мотособаки на дыбы, зарывание в слишком глубоком снегу, забрасывание снега в сани. Всех этих неприятностей можно избежать, если делать транспортное средство самому.
При переднем расположении мотора мотособаки, которое практически всегда планируется в самодельных моделях, работа машины будет намного эффективнее. Вот очевидные плюсы:
- экономия топлива и общее удешевление конструкции;
- более высокая скорость движения;
- возможность сделать дополнительные отсеки для снастей.
Şərh • 70
Успейте купить мотобуксировщик с выгодой до 16 450 рублей! РАСПРОДАЖА мотобуксировщиков «Бурлак-М» на сайте производителя snegoxod.ru/motobuksirovshhiczi-akcziya.html?.ru&
Здравствуйте. У меня на буксировщике двигатель Лифан 15. Такая проблема быстро сгорает свеча зажигания. Что может быть причиной?
Пропала искра, прогрел букс не много проехал и он заглох, заводить не запускается, чд, свечу завтра поменяю. хз что происходит
Друг скажи пожалуйста, мотор восьмерка Лифан на буксе, разгоняют, даю полный газ начинают плавать обороты ,как будто двигатель сам их скидывает, так и должно быть?
Спасибо!! Супер успокоили.
Почему свечи постоянно пробивает
Здравствуйте, купил Loncin G200f , запустил , на холодную иногда пропуски вспышек. Прогрел минут 10 без нагрузки тоже самое. В чем причина может быть?
а какие свечи лучше ? свечи зажигания. двигатель Лончин 15 сил. в стоке идёт свеча torch f7rtc — но вышла из строя. и говорят они плохого качества. советую NGK . вы какую свечу посоветует ? какой марки.. ?
Здравствуйте. Только сейчас увидел ваше видео всё очень понятно. У меня вопрос. У меня лифан 24лошадок. На сколько оборотов мне сделать регулировку подачи бензина?
После обкатки пропала скорость,обкатка проходила соблюдая инструкций,что может быть?
Объясните мне пожалуйста почему при запуске в мороз двигатель развивает бешенные обороты и не реагирует на движение ручки газа? потом это исчезает и нормализуются обороты , из за этого мне приходится приподнимать мотособаку иначе вариатор сразу приводит её в движение из-за высоких оборотов. Что там западает или примерзает или ещё что ? один раз минут на пять заглушил а при запуске он рванул с места я едва успел запрыгнуть и не дать ему ехать без меня. Слава Богу находился посреди поля. Подскажите что за хрень. Я очень посредственный моторист ,
Вроде все нормально, грамотно рассказывает. Но как будто то все его задолбали уже. Ну ребята, ну че вы такие, ну че сякие, ну Я же рассказывал уже.Ну читайте конспекты(смотрите мои прошлые видосы и не задавайте мне вопросы и не е..те мне мозги) .. Как препод в ПТУ.
Здравствуйте у меня на двигателе такая неисправность. Не регулируется качество смеси. При полном закручиваний винта качества поидее двигатель должен заглохнуть. Двигатель работает рывками свеча покрывается черной копотью.
Здравствуйте. У меня вот такая беда.На мотобуксировщике Разгуляй 15л.с. лифан начались проблемы ,при езде через 2-3 км он попросту глохнет.Заводится на ура ,но через несколько метров опять глохнет,и так по несколько раз пока снова не поедет без остановок .Фильтр новый свечи тоже жиклер продувал.Подскажите что может быть ведь работает без проблем до определенного времени.
Добрый день. Подскажите как специалист. На мотособаке 15 л. С. Газ на всю а вариатор сафари сжимается только наполовину. Тянет хорошо двое саней но хочется чтобы ремень выходил на край а то боюсь при постоянном его нахождении на середине ремень быстро сгорит
Позоже что ремень уже надо менять. Я сегодня поставил новый, так он на самом верху теперь,а было как у вас в середине и даже проваливался и тяга пропадала.
Здравствуйте, подскажите на ходу букс дёргается на средних оборотах двигатель Лифан 15 подскажите где искать
А у моего карбюратора стоит заглушка, как быть?
С новым годом вас и рождеством. У меня на бурлак стоит 15 сильный мотор и на карбюраторе винт качества без шляпки под отвёртку. Как быть с регулировкой ?
Часть 1 — Создание и расходы
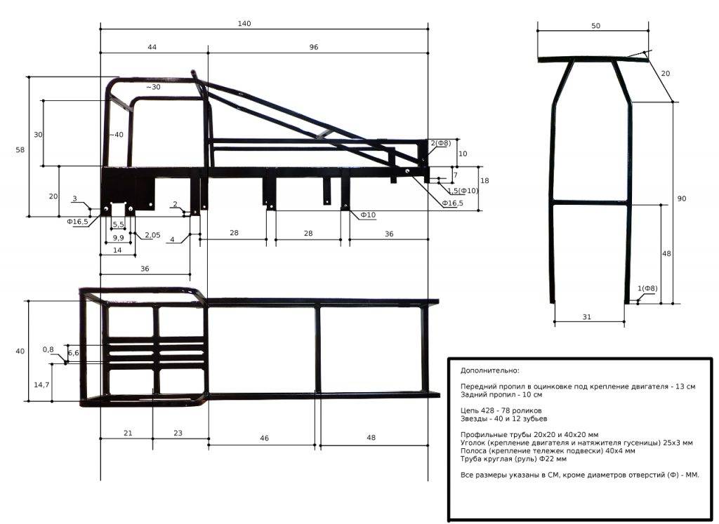
Мотобуксировщик создавался своими руками для хозяйственных нужд и неспешных поездок по лесу. Рама варилась с нуля, без чертежей. На буксировщик установлен китайский двигатель Forza мощностью 6,5 л.с. и бурановская гусеница шириной 380 мм.

Что по деревянным склизам, то целью их использования было удешевление всей конструкции и проверка ее пригодности на практике. Забегая вперед скажу, что склизы из дерева прекрасно справились со своей задачей и заслуживают полное право на жизнь.

Постройка мотособаки заняла чуть более 20 часов и обошлась приблизительно в 25 тысяч рублей. Более подробно процесс создания мотобуксировщика рассмотрен в первой статье. Там же примерные размеры конструкции. Ссылки на все части по мотособаке будут в конце этой статьи.
Часть 2 — Основные доработки
После двух недель эксплуатации были выполнены следующие работы:
- заменены склизы, изношенные спереди из-за большого угла атаки гусеницы;
- усилено крепление двигателя;
- установлен натяжитель цепи;
- установлен защитный кожух для двигателя.
После этого никаких существенных изменений в конструкцию не вносилось.
Часть 3 — Испытания
На открытых участках мотобуксировщик спокойно тянет за собой двух человек массой под 90 кг каждый в двух волокушах. В пухляке же ситуация чуть похуже: если одного человека тянет уверенно, хоть и проваливаясь, то двух уже с большим трудом.

Что касается скорости, то она составляет чуть более 20 км/ч со звездами на 41 и 15 зубьев.
Часть 4 — спустя 150 км пробега
Тут в целом ничего интересного, поломок почти не было, никакие изменения в конструкцию не вносились. Был замерен примерный расход топлива, он составил 10-15 литров на сотню.
Разновидности мотобуксировщиков
Все гусеничные буксировщики разделяются на 2 варианта исполнения – передне- и заднеприводные. Сторонники есть и у того, и у другого типа привода. Объективно, разница заключается в следующем.
Основной плюс мотособак с задним приводом – маневренность и управляемость за счет того, что центр тяжести смещен ближе к месту сцепки. Они отлично идут груженые. Однако пустой мотобуксировщик постоянно встает на дыбы, на подъеме опрокидывается, а на снегу просто закапывается.
В переднеприводных мотобуксировщиках центр тяжести смещен к переду, что увеличивает пятно контакта гусеницы с поверхностью. Проходимость таких мотобуксировщиков практически не зависит от загрузки, что в целом обеспечивает лучшую тяговитость и ходовые характеристики.
Высокие нагрузки на кормовую часть буксировщика приводят к более частому выходу деталей привода из строя. Чаще всего лопаются пружины балансирных тележек, которые сразу же режут гусеницу по кругу. Вызывает проблемы даже замена подшипников ходовой части, для чего нужны серьезные демонтажные и регулировочные работ. Необходимо снять двигатель, отрегулировать поперечное и продольное смещение вариатора, тогда как ремонт переднеприводной компоновки не сталкивается с подобными трудностями.
Таким образом, переднеприводные собаки более проходимые, менее требованные в уходе, ими проще управлять и движутся они быстрее.



































